Comprehensive Guide To Sheet Metal Brackets

Published on 2026-01-19
Metal brackets arranged on an assembly line.
Share the Post:

Table of Contents

Contact Us

What makes a great sheet metal bracket, and how do you choose the right one for your application?

Sheet metal brackets are important components that connect, support, and mount metal parts in various industries, from construction and aerospace to electronics and consumer products. 

Whether it is a gusset bracket for added strength, a Z bracket for offset mounting, or an L-shaped bracket for structural alignment, selecting the right bracket design ensures optimal performance and durability.

ProleanMFG provides custom sheet metal fabrication solutions for brackets with precise construction, tight tolerance, and specialist finishing.

In this guide, you’ll explore the types of sheet metal brackets, design considerations, materials, fabrication techniques, and applications. 

Let’s dive in to help you determine the exact type of bracket for your project requirements.

What Are Sheet Metal Brackets?

Two shiny, L-shaped metal brackets with holes.

Fabricated Sheet Metal Brackets

A metal bracket is designed to attach inside boxes, frames, or other structures. It helps make nearby parts of your design stronger.

These brackets are usually made from thin metal sheets using laser cutting, punching, bending, and welding—key processes in sheet metal fabrication. They come from 0.3mm to 6mm in thickness.

The type of bracket and what it is used for determines the material. Standard options include stainless steel, aluminum, cold rolled, and zinc-coated steel. 

These materials are chosen for their rust resistance, strength, and ease of machining or forming.

Different Types of Metal Brackets

When selecting the right sheet metal bracket, understanding the available bracket styles is important to achieve both structural integrity and design efficiency. 

From L bracket to Guseet bracket, each type performs a unique function—whether it‘s mounting parallel surfaces together or reinforcing a complex custom enclosure.

Let’s take a look at different types of metal brackets:

1. L-Shaped Brackets

Close-up of shiny L-shaped brackets with screws.

Stainless Steel L-Shaped Brackets

Also known as L brackets or corner braces, they form a 90-degree angle and are typically used to connect perpendicular surfaces for added structural support. They are also found in furniture, wall fixtures and electronics.

2. U-Shaped Brackets

Black U-shaped bracket showing metric and imperial dimensions.

U-Shaped Bracket with Dimensions

They are commonly used as U brackets for pipe supports, cable trays, or to hold cylindrical objects. Depending on the application, they may also be referred to as saddle brackets or channel brackets.

3. Z Brackets

Two metal Z-brackets

Two Silver Z-Shaped Brackets

Z brackets are metal support components shaped like the letter “Z,” commonly used to join or mount surfaces at a right angle. They offer strong, compact reinforcement in structural frames, shelves, or wall installations where space is limited.

4. Angle Brackets

Four black angle brackets and accompanying screws.

Black Angle Brackets 

With the size of a triangle, these brackets provide additional support and are used in bridges and buildings, reinforcing structural joints.

5. Gusset Brackets

Silver gusset bracket with oval and round holes.

Aluminum Gusset Bracket for Support

Gusset brackets are designed for stiffness and durability. These brackets provide stiffness between adjacent surfaces and increase joint strength with additional materials.

6. Offset Brackets

Two silver metal offset brackets with holes.

Offset Brackets

By combining the characteristics of Z and U shapes, the offset brackets help when components are not linearly aligned. These are ideal for complex enclosure design scenarios.

7. T-Shaped Brackets

Beige T-shaped bracket with rounded ends and holes.

Beige T-Shaped Wall Bracket

T-shaped brackets help connect three directions, allowing mounting in multi-angle structures such as frames of heavy equipment.

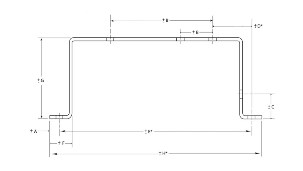
Bracket Design Consideration

Line drawing of a bracket with marked dimensions.

Bracket Design Tolerances and Dimensions

When you need a metal bracket, consider these design ideas:

  • Ensure that holes match fastener specs.
  • Use CAD software to define bracket surface features.
  • Specify the weld lines if necessary.
  • Keep tolerance values ​​tight to fit and function.
  • Design brackets are used for ease of mounting and hardware installation.

If necessary, consult the expert designers to finalize your bracket design with a tight tolerance.

Sheet Metal Bracket Materials

Pile of unpainted, unfinished metal brackets.

Assorted Sheet Metal Bracket Materials

It is necessary to choose the right material to ensure bracket performance, durability and finish quality. ProleanMFG work with a wide selection of metals to match specific load-bearing, environmental, or aesthetic requirements.

1. Stainless Steel

In exposure to harsh environments, it is known for its extraordinary corrosion resistance and durability, and it is usually used in industrial, medical, and marine applications.

2. Aluminum Brackets

Lightweight yet strong, offering excellent material strength and corrosion protection. Ideal for electronics, aerospace and custom decorative finish brackets.

3. Cold Rolled Steel

Provides excellent structural strength and is highly machineable. Works well with surface finishes such as powder coating or electroplating, which enhance corrosion resistance and appearance.

4. Zinc

Often used in electroplate finishes, zinc improves surface corrosion resistance and adds to the life of the bracket.

5. Brass, Copper, and Titanium

Selected for speciality use cases that require conductivity, heat resistance or specific strength-to-weight properties.

These materials also support various finishing options such as passivation, dry powder, and anodizing, enhancing performance and aesthetic appeal.

Mounting and Applications of Brackets

Black wall mount bracket with built-in level.

Wall Mount Bracket Application

Brackets are designed to join or support structures by mounting them securely in place. Depending on the type of bracket, they provide stability in mechanical systems, enclosures or load-bearing frames.

IndustryUse Cases
AutomotiveBattery mounts, body panels, and engine enclosures
AerospacePanel support, structural reinforcement, fixture mounts
ConstructionHVAC supports, wall enclosures, and  curtain walls
MedicalSurgical bed frames, tray holders
ElectronicsDevice housing, custom enclosure, component supports
ArchitectureUsed in architectural design for aesthetics

Mounting methods often involve:

  • Threaded or unthreaded holes for fastener attachment
  • Using bottom flanges to stabilize large brackets
  • Designs that mount to the inside of cases or panels

ProleanMFG account for real-world installation needs—ensuring all brackets provide rigidity where required and integrate easily with your assembly line or installation workflow.

Why Choose Custom Brackets?

Custom bracket solutions ensure that your design aligns perfectly with your product specs. Whether you need a custom sheet metal bracket for a new device or to resume an existing enclosure, custom options provide:

  • Freedom to choose bracket styles
  • Accuracy using precision machining
  • tailored finishes like powder coating or anodize

Conclusion 

Choosing the right sheet metal bracket is important to ensure stability, durability and functionality in your design. From L-shaped to gusset bracket, each type plays a unique role in mounting, support and enclosure construction. 

With a wide range of materials such as stainless steel, aluminum, and cold rolled steel, and finishing options such as anodize and powder coating, ProleanMFG provides precision and strength. 

Whether you need standard parts or a custom bracket, we ensure tight tolerances and top-notch quality every time. Start today with a fast and free quotation from ProleanMFG and see how we turn your ideas into production-ready sheet metal brackets.

Share the Post:

Try Prolean Now!

All information and uploads are secure and confidential.

Submit a Comment

Leave a Comment

Your email address will not be published. Required fields are marked *

You may also like

Aerospace CNC Machining: Benefits, Materials, & Relevance

Stainless Steel CNC Machining: Tips, Challenges & Finishing

Try Prolean Now!

All information and uploads are secure and confidential.

Scroll to Top